Terreno
en venta
en Calle
ARGOÑOS
ARGOÑOS (Argoños)
260.000€
¡Ha bajado 100.000 €!
Ref.004011
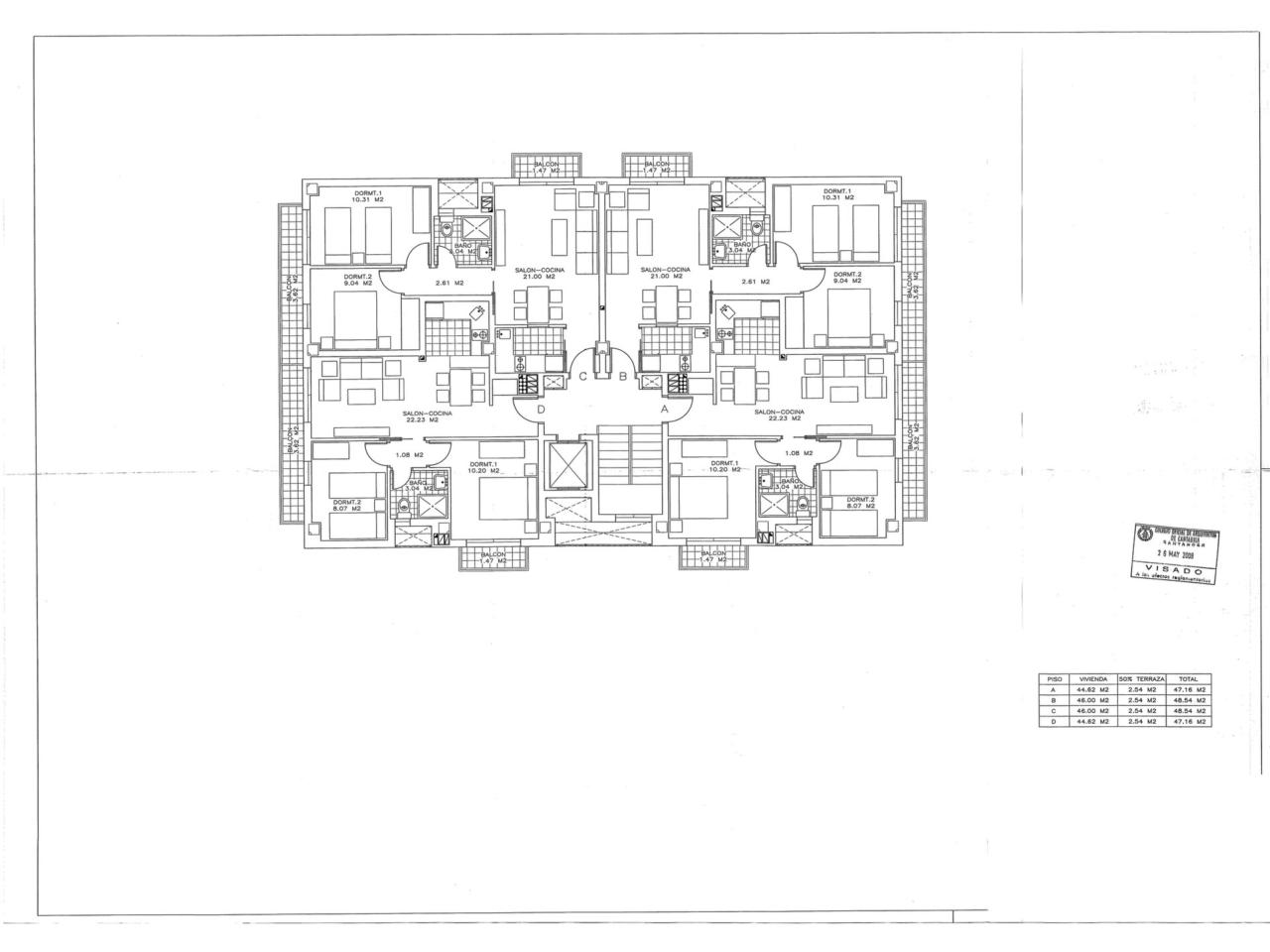
REF.004011: NOJASOL INMOBILIARIA vende TERRENO URBANO DE 964M2 en Argoños.
Parcela muy cuadrada para su edificación, cercana a la carretera, asfaltada, con alumbrado y alcantarillado en el terreno.
...
REF.004011: NOJASOL INMOBILIARIA vende TERRENO URBANO DE 964M2 en Argoños.
Parcela muy cuadrada para su edificación, cercana a la carretera, asfaltada, con alumbrado y alcantarillado en el terreno.
Tiene licencia de obra aprobada (antigua) que se puede reactivar. Ya tiene el proyecto básico PAGADO Y VISADO (un coste importante si se quiere seguir con el proyecto inicial).
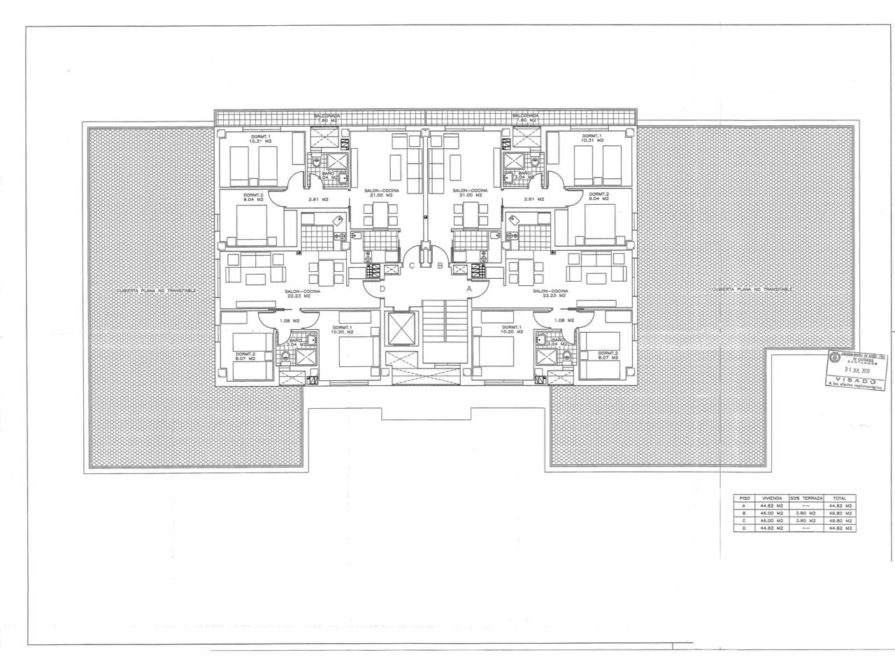
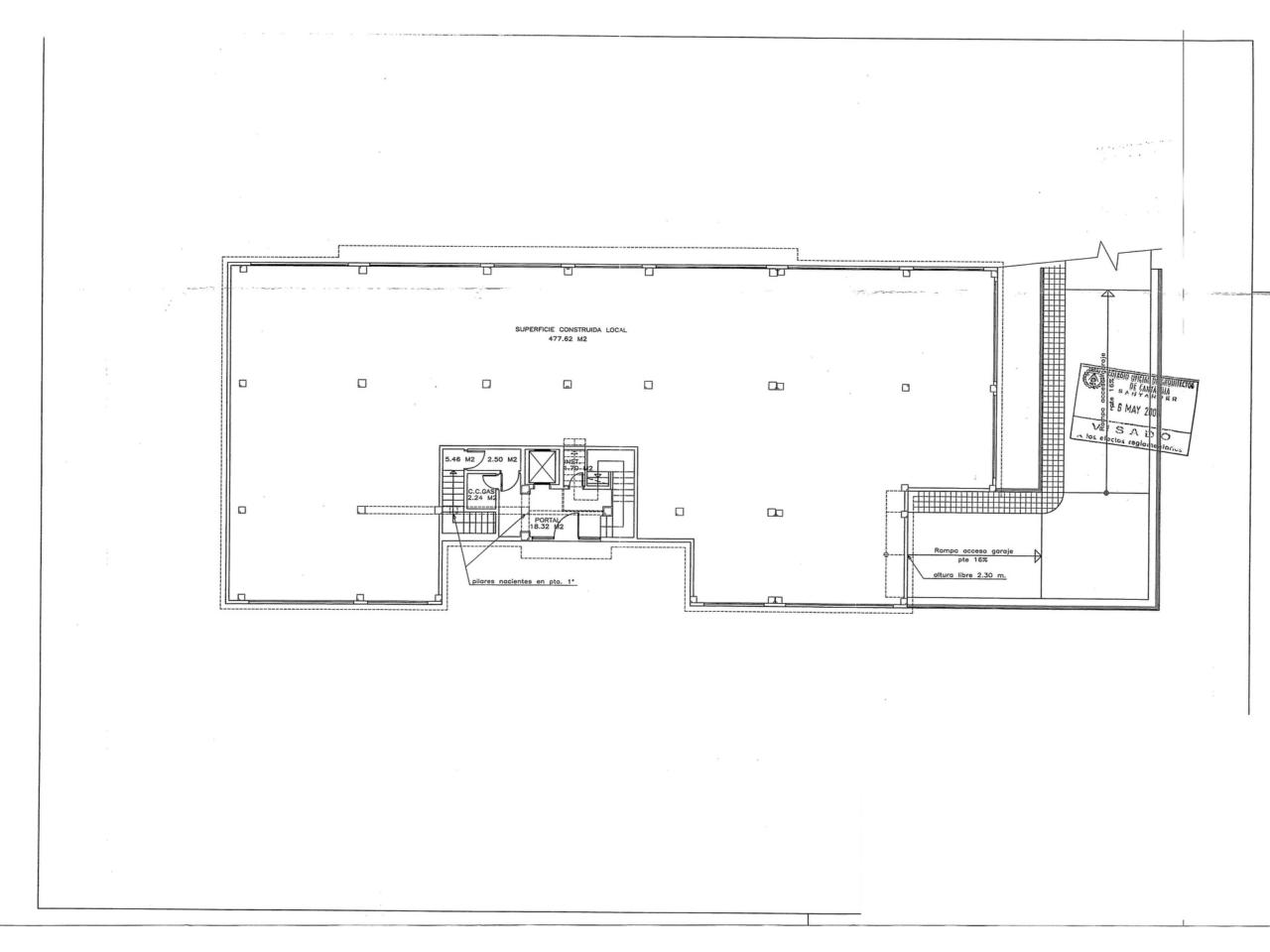
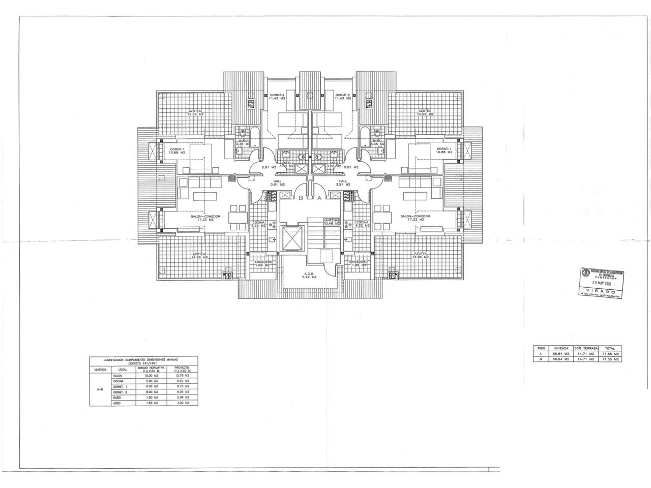
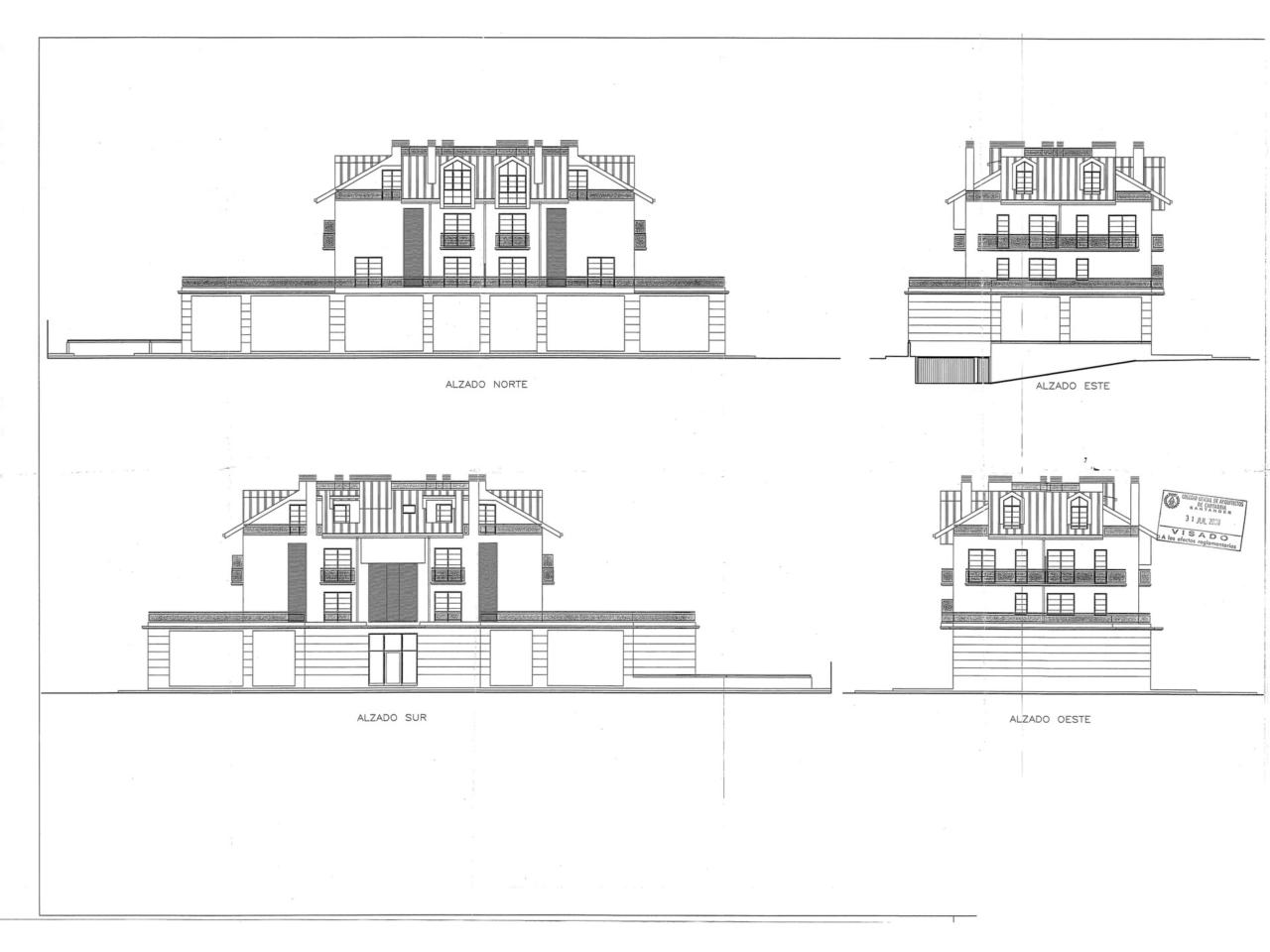
En dicho proyecto, se componía de lo siguiente (local comercial de 477m2 y 10 viviendas):
- Local comercial en planta baja de 477m2 destinado para un negocio que requiera amplia superficie o un supermercado.
- 1º planta: 4 viviendas de 2 habitaciones.
- 2º planta: 4 viviendas de 2 habitaciones.
- 3º planta: 2 viviendas de 2 habitaciones con terrazas de 15m2 cada uno.
Las viviendas se componen de 2 habitaciones con un baño de unos 48m2 útiles aprox. Se tenia proyectados 2 plantas bajo rasante; una para el local comercial y otra para garajes.
O PLANTEAR HACER 16 VIVIENDAS (SUSTITUIR EL LOCAL COMERCIAL POR 4 VIVIENDAS EN PLANTA BAJA).
En el precio incluye el coste del proyecto básico ya pagado. La propietaria de la parcela es una empresa, una ventaja importante ya que la parcela se vende con IVA y dicho IVA se deduce.
!!Oportunidad PARA INVERSORES O PROMOTORES!!
INMOBILIARIA NOJASOL, con mas de 20 años de experiencia en el sector.
En nuestra página web inmonojasol.com te ofrecemos la posibilidad de buscar propiedades de manera eficiente a través de nuestra avanzada herramienta de búsqueda, la cual incluye filtros personalizables como la elección entre pisos / chalets / terrenos, el rango de precios (entre un importe u otro), disponibilidad de piscina, ascensor, garaje y muchos criterios más. Esto te permite obtener una selección de propiedades que se ajusten de manera precisa a tus preferencias e intereses.
Leer más
-
Superficie solar
964 m2
-
Cert. energética